
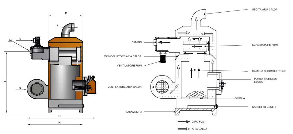
Arca wood and pellet hot air generator 50, 70, 100, 150, 250 kW
Lisainfot leiad: ARCA S.r.l. boilers

Arca wood hot air generator 50, 70, 100, 150, 250 kW
Lisainfot leiad: ARCA S.r.l. boilers

Lisainfot leiad: ARCA S.r.l. boilers
ARCA õhkkütte puu-pelletikatlad
Tulemusi pole
